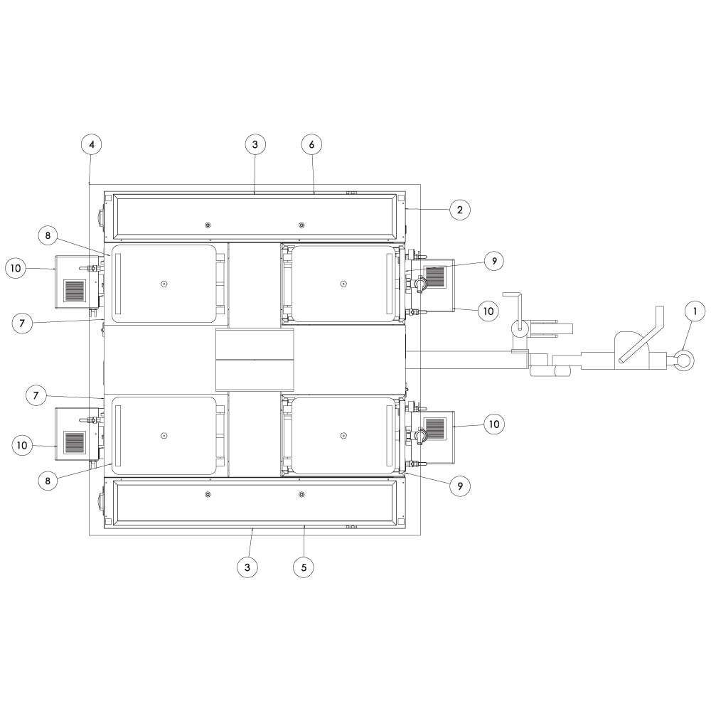
1. Aks ve çekici ok (1 Takım)
2. Şase (1 Adet)
3. Araç yan dolapları (2 Adet)
4. Üst muhafaza ve çadır (1 Adet)
5. Gaz ve yangın söndürme sistemi (1 Takım)
6. Elektrik ve su sistemi (1 Takım)
7. Fırın (2 Adet)
8. Basınçlı tava (2 Adet)
9. Büyük çiftcidarlı basınçlı kaynatma kazanı (2 Adet)
10. Yanma sistemi (4 Adet)


